Alumīnija profilu sistēma - Ponzio PE60

Alumīnija profilu sistēma - Ponzio PE60
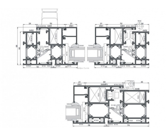
Ponzio PE60 ir trīskameru profilu sistēma ar „eirorievu”, kura tiek izmantota PVC un koka logos un balkona durvīs. Dziļums ietvaros ir 60 mm; vērtnēs – 68 mm. Šī sistēma ir platāka, salīdzinot ar sistēmu Ponzio PE52, bet termiskais ieliktnis (24 mm) un divdaļīgs centrālais blīvētājs garantē augstus termiskus parametrus. Pateicoties blīvētājelementiem var neizmantot ārējo palodzi. Sistēmā arī ir iespējams izmantot plašu aksesuāru izvēli. Trīskameru profilu konstrukcija Ponzio PE60 palielina profilu cietību un dod iespēju izgatavot lielu gabarītu konstrukcijas. Sistēmā var izmantot pildījumu ar biezumu 10-51 mm un izgatavot arkas konstrukcijas.





