Alumīnija profilu sistēma durvīm - Ponzio NT 78EI

Alumīnija profilu sistēma durvīm - Ponzio NT 78EI
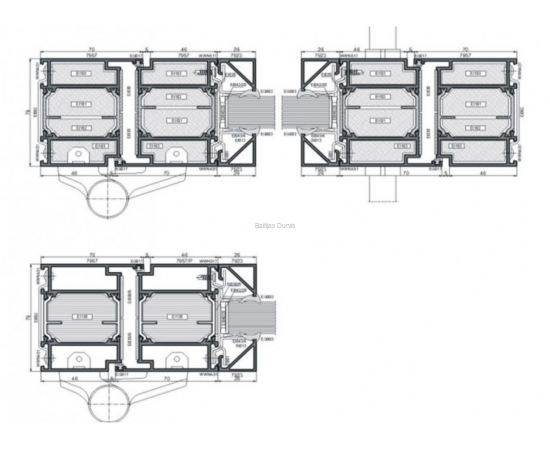
Ponzio NT 78EI - trīskameru sistēma ir izveidota iespējai iebūvēt iekšējas un ārējas starpsienas. Ponzio NT 78EI sistēma ļauj iebūvēt vienvērtnes un divvērtņu durvis, veramas ārā vai iekšā, ar dažādiem sliekšņa risinājumiem. Sistēma izmanto siltuma plāksnes ar platumu 35 mm. Rāmja un vērtnes dziļums ir 78 mm. Trīskameru struktūra un papildus pastiprinoši elementi sistēmā ļauj izveidot liela izmēra konstrukcijas.
- Savienojamība ar citām PONZIO sistēmām;
- Apdare durvju ārējā pusē;
- Iespēja veidot arkas konstrukcijas;
- Ugunsdrošs pildījums: ģipsis, alumosilikāts;
- Pildījums: 8-50 mm.





