Алюминиевая профильная система для окон - Ponzio PE78 N

Алюминиевая профильная система для окон - Ponzio PE78 N
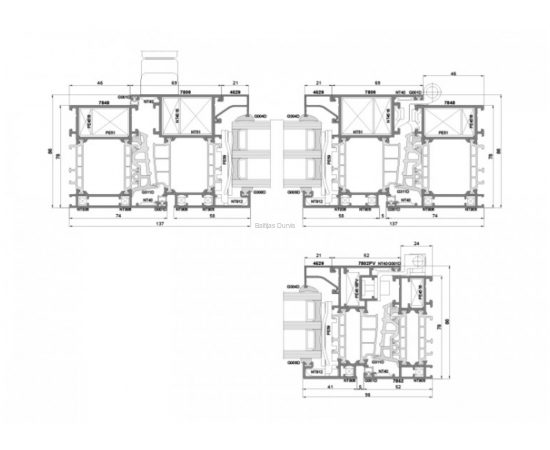
Трехкамерная система профилей может быть оснащена „европазом”, это означает, что может быть использована фурнитура от обычных ПВХ или деревянных систем профилей. Такая система использования фурнитуры в конструкций окон, отвечает повышенным гидро- и термоизоляционными требованиями. Конструктивная глубина профилей для рам составляет 78 мм, а для створок 86 мм. Благодаря многокамерному термоизолятору, шириной 42 мм и двойному контуру уплотнения, достигается высокая теплоизоляция. В версии РЕ78N коэффициент теплопроводности Uf рамы составляет от 1,7 W/m2K. В версии более теплой, РЕ78N+, рамный коэффициент теплопроводности Uf составляет от 1,3 W/m2K. Система позволяет применять широкую гамму аксессуаров, что облегчает и монтаж конструкций. Трехкамерная конструкция профилей системы Ponzio РЕ78N обеспечивает большую жесткость, в результате чего мы получаем возможность изготавливать конструкции с большими габаритами.
<- Совместимость с другими системами PONZIO;
- Возможность разной окраски внешних сторон оконных рам;
- Возможность использования двухкомпонентной прокладки EPDM;
- Возможность создания арочных конструкций;
- Возможны несколько видов угловых соединений.



