Алюминиевая профильная система - Ponzio PT52

Алюминиевая профильная система - Ponzio PT52
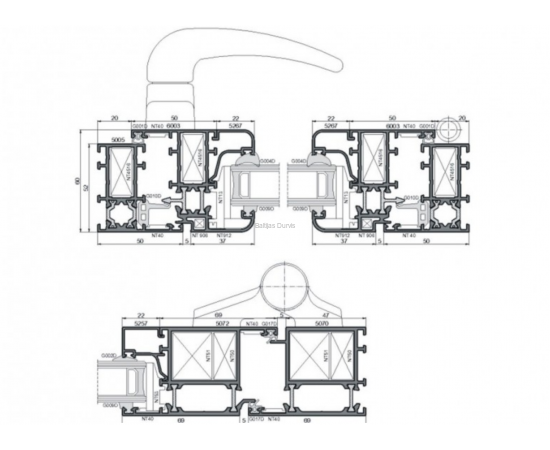
Система разработана для производства наружных строительных элементов, требующих теплоизоляции. Конструкции с использованием системы Ponzio PT52 относятся к группе материалов RMG 2.1. Система имеет возможность использовать большое количество решений для производства различных типов окон, дверей и комнатных конструкций. Используются термопрокладки шириной 16 мм (прямые и омега-формы), которые обеспечивают правильное обезвоживание структуры. Глубина профиля для рам и створки - 52-60 мм.



